将 -show- - Fujiyoshida
Looking for a destination that blends ancient tradition with modern wonder? Japan offers it all—from the electric buzz of Tokyo to Kyoto’s serene temples, relaxing hot springs, scenic gardens, and the majestic Mount Fuji. Indulge in world-class cuisine, stay in traditional ryokans, and travel swiftly on the bullet train. Whether you're seeking cultural treasures, natural beauty, or peaceful retreats, Japan has something unforgettable for every traveler. Don’t wait—book your Japanese adventure.
将 -show-
Fujiyoshida 下吉田3丁目22−13
WiFi
Parking
We speak
JA
9.0/10
WiFi
Parking
We speak
JA
9.0/10
Situated 7.7 km from Lake Kawaguchi, 25 km from Mount Fuji and 1.6 km from Oshijuutaku Togawa and Osano’s House, 将 -show- offers accommodation located in Fujiyoshida. Both free WiFi and parking on-site are accessible at the villa free of charge. The property is non-smoking and is3.4 km from Fuji-Q Highland.
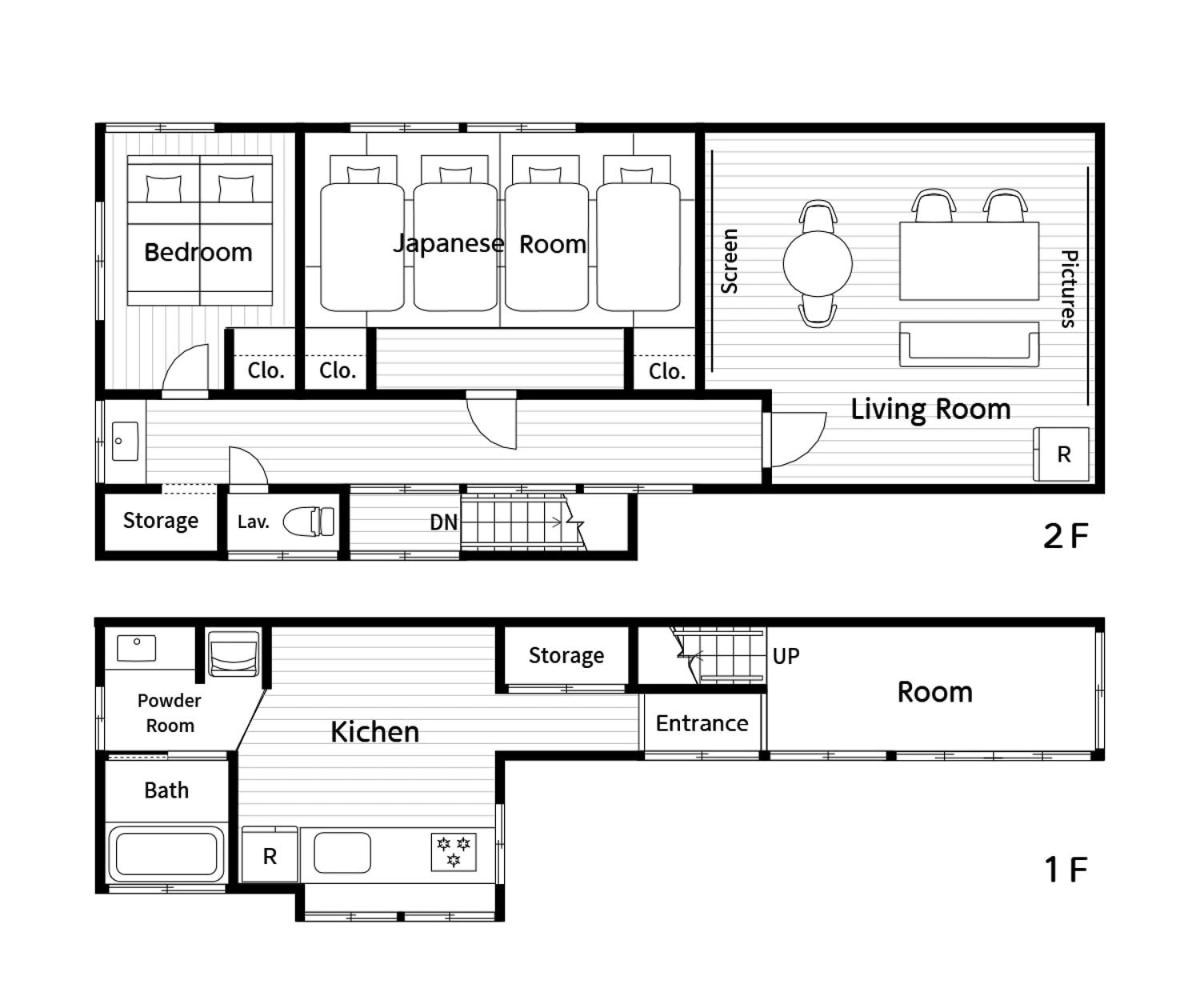
The air-conditioned villa is composed of 2 separate bedrooms, a fully equipped kitchen, and 1 bathroom.
Mount Kachi Kachi Ropeway is 5.3 km from 将 -show-, while Kawaguchi Asama Shrine is 5.8 km from the property. Tokyo Haneda Airport is 118 km away.
The hotel day starts from hour 15:00 and ends at 10:00.
This property will not accommodate hen, stag or similar parties.
Two-Bedroom Villa. The air-conditioned villa has 2 bedrooms and 1 bathroom with a bath or a shower and a hairdryer. The villas kitchen is available for cooking and storing food. The villa offers a washing machine and heating. The unit has 6 beds.
License number: 山梨県指令 富東福第9157号
WiFi available in all areas
Non-smoking throughout
WiFi
Internet services
Free parking
Parking on site
Air conditioning
Parking
Free WiFi
Non-smoking rooms
CCTV outside property
